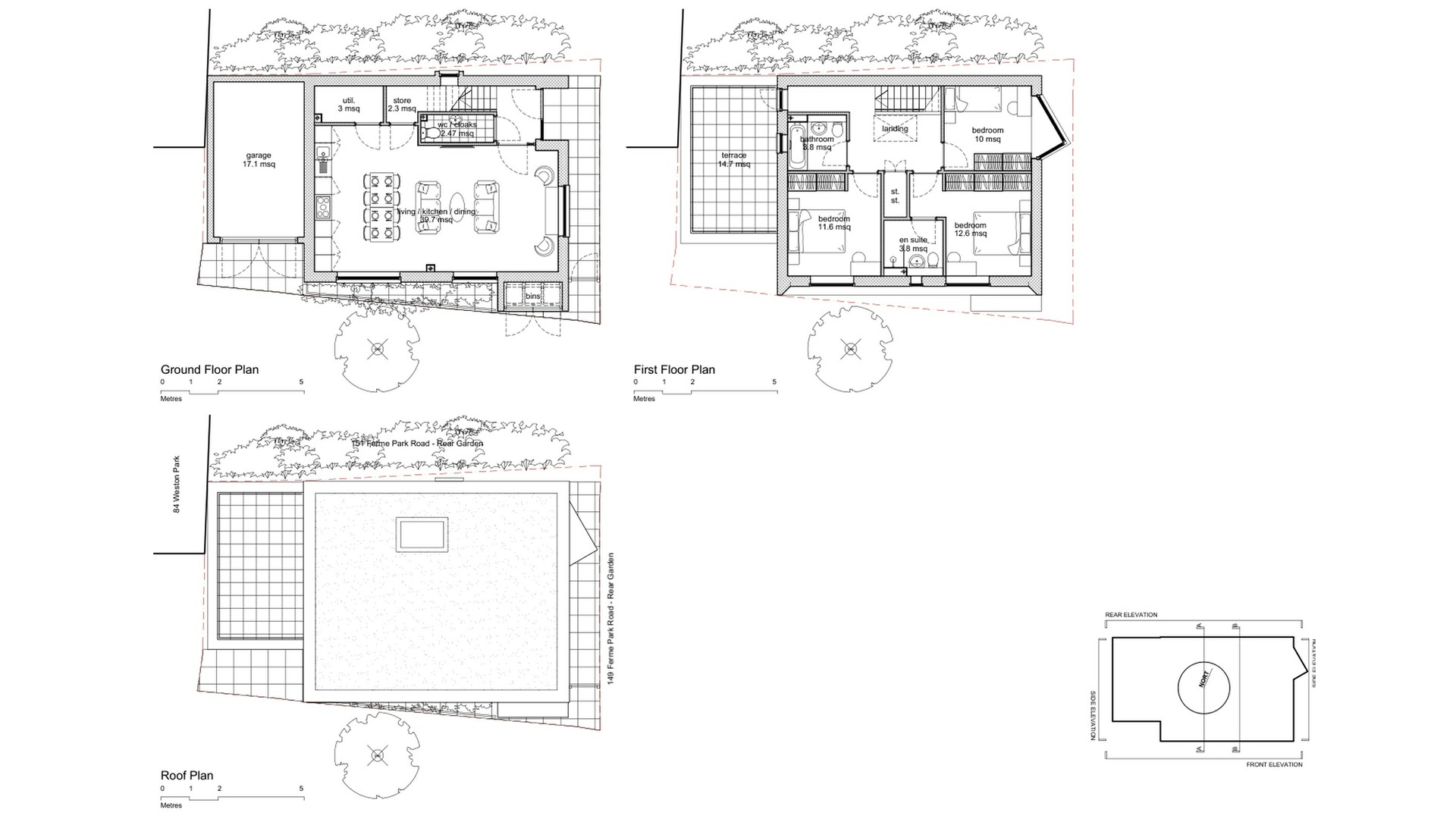
Weston Park

Description : Erection of a new modern two storey house within a conservation area

Location : Crouch End, London

Value : £500,000

Status : Planning