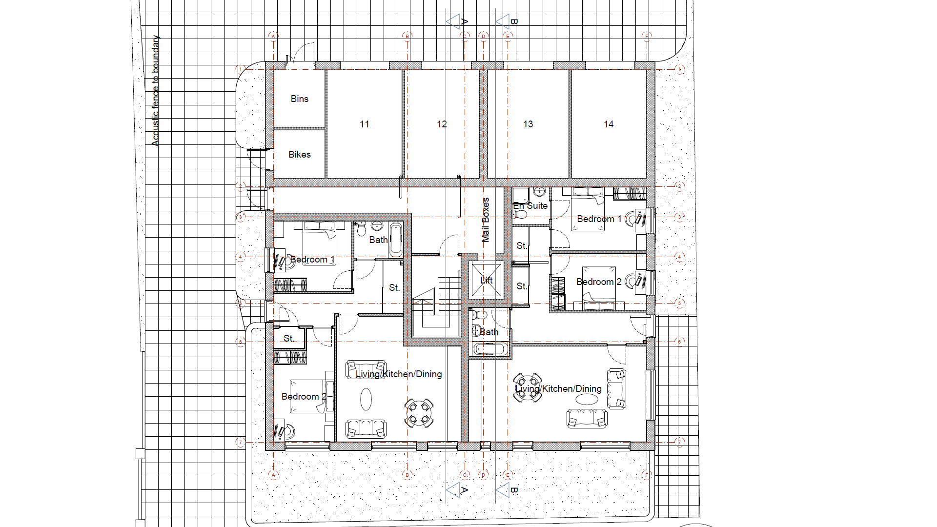
St. Andrew's Apartments

Description : Erection of a new modern apartment block within a conservation area

Location : Bexhill-on-Sea

Value : Circa £2m

Status : Planning