Link Road

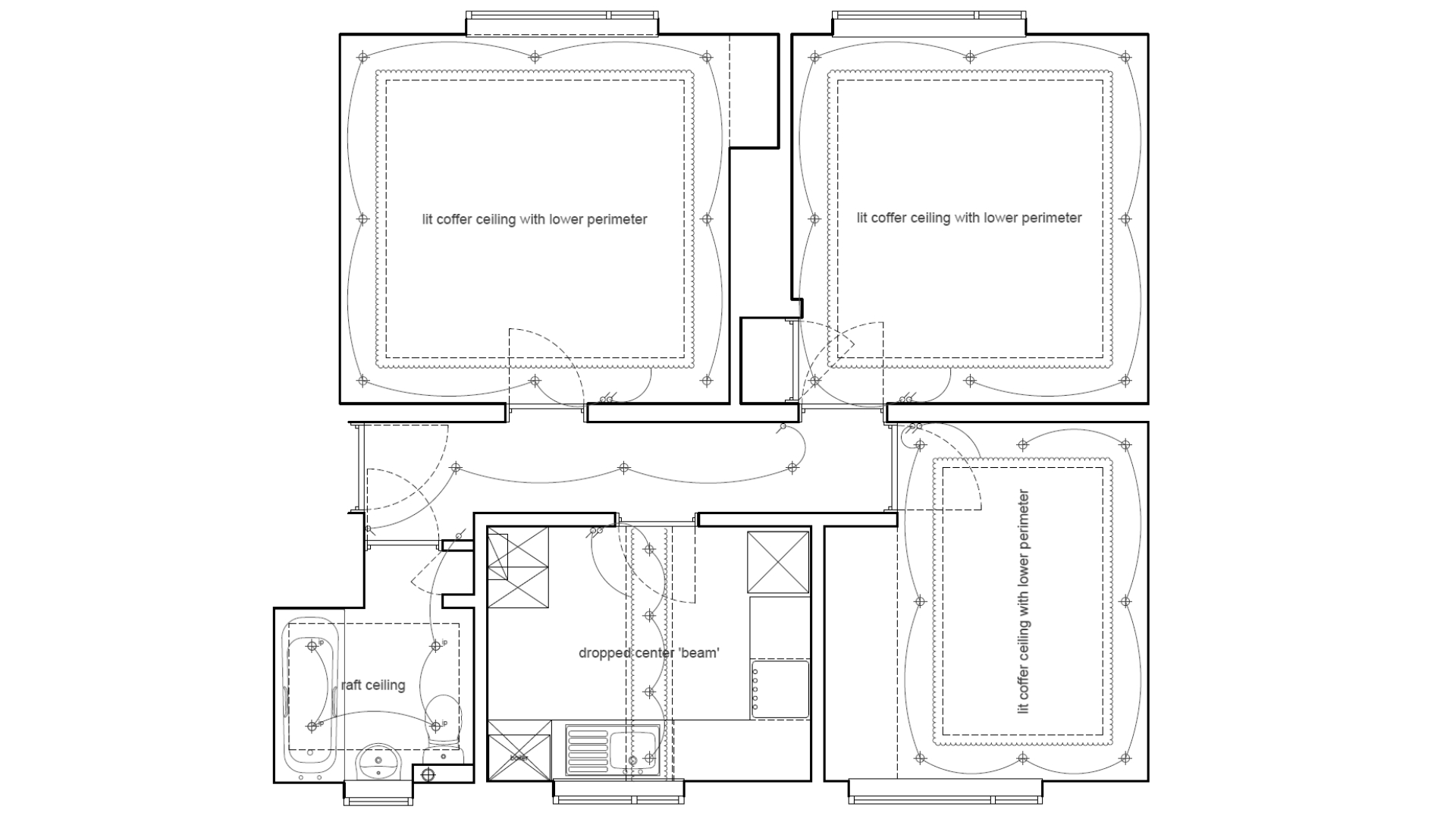
Description : The refurbishment of an ex-local authority property to create a modern hi-spec flat on a relatively small budget.

Location : Barnet, London

Value : £25,000

Status : Complete