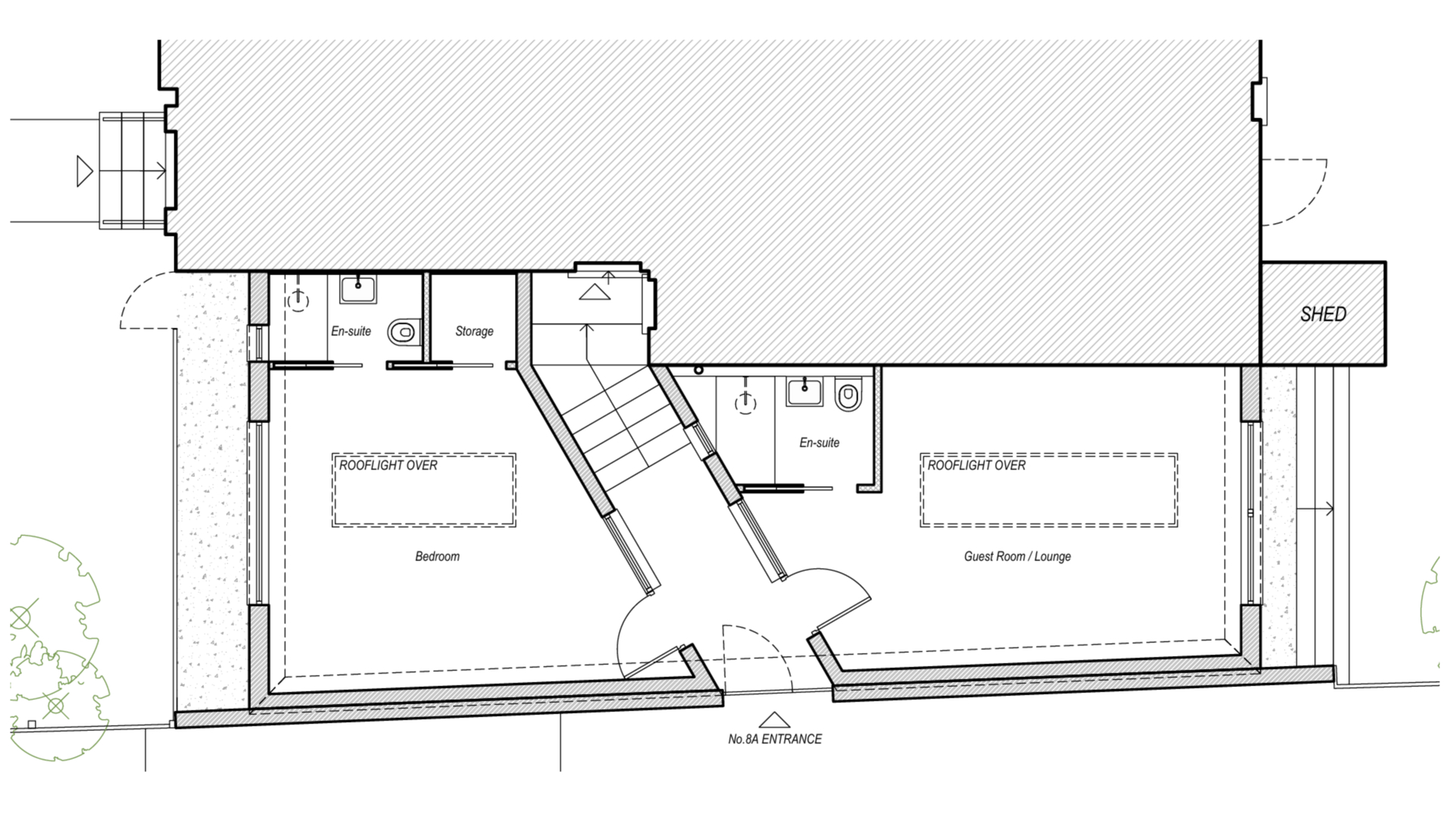
Crouch Hall Road

Description : A large side extension to an existing house within a conservation area

Location : North London

Value : Not disclosed

Status : On site

Main Contractor : Christian Osborn